
![]() |
PPY全自动平面移动类立体停车位 |
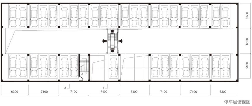
平面移动类立体停车设备是在同一层平面上使载车板平面移动来实现存取停放车辆的功能,设备自动化程度高,快速处理,连续出入库,停车效率高,可多人同时存取车辆;轻松实现由百台到上千台规模的大容量停车。
采用无人式全自动智能停车模式,存取车速度快且“零值守”,无需掉头、倒车等操作。适用群体:商业中心、住宅、学校、酒店等。

设备特点:
平面移动类自动停车系统是应用了高效的水平仓储技术,每个停车层配备有单独的横移车负责本层的车辆存取,并由升降机负责将车辆搬运至不同停车场,驾驶员只需要将车辆停放在停车平台,系统将安全的把车停放在立体的停车位。
平面移动适用于场地狭长,存取车效率要求较高的项目,取车时间平均为90秒,运行效率高。在所有自动停车系统中,平面移动的横移速度最陕,层高仅需1950mm,并适用地上或地上有限的空间,节省土建成本。平面移动类自动停车系统是现代化城市中最适合大平面大容量的立体车库。
全封闭建造、存取车安全性好;
节省空间,设计灵活、投资少、成本及保养费用低、操作方便;
多重安全防护措施,确保人车安全;
不排出汽车废气,绿色环保;
最大车容量高,可满足大型车辆停车需求。
产品参数:


